Cabinetry Details
Here, you will discover the most recent design and layout plans that we have thoughtfully developed for the different rooms in our home. Our goal is to seamlessly incorporate elements that beautifully blend style, practicality, and artistry, highlighting durable materials, eco-friendly designs, and sustainable finishes to enrich our living environment.
Kitchen
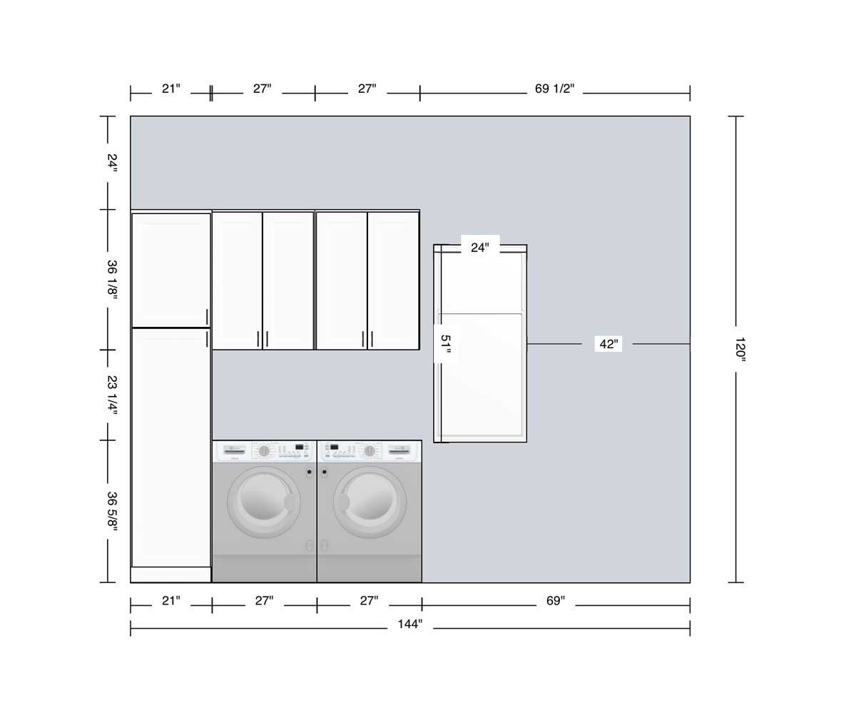
Laundry Room
Main Bedroom WIC
COMING SOON




















